
建设单位:大连峻润科技有限责任公司
设计单位:大连城建设计研究院集团有限公司
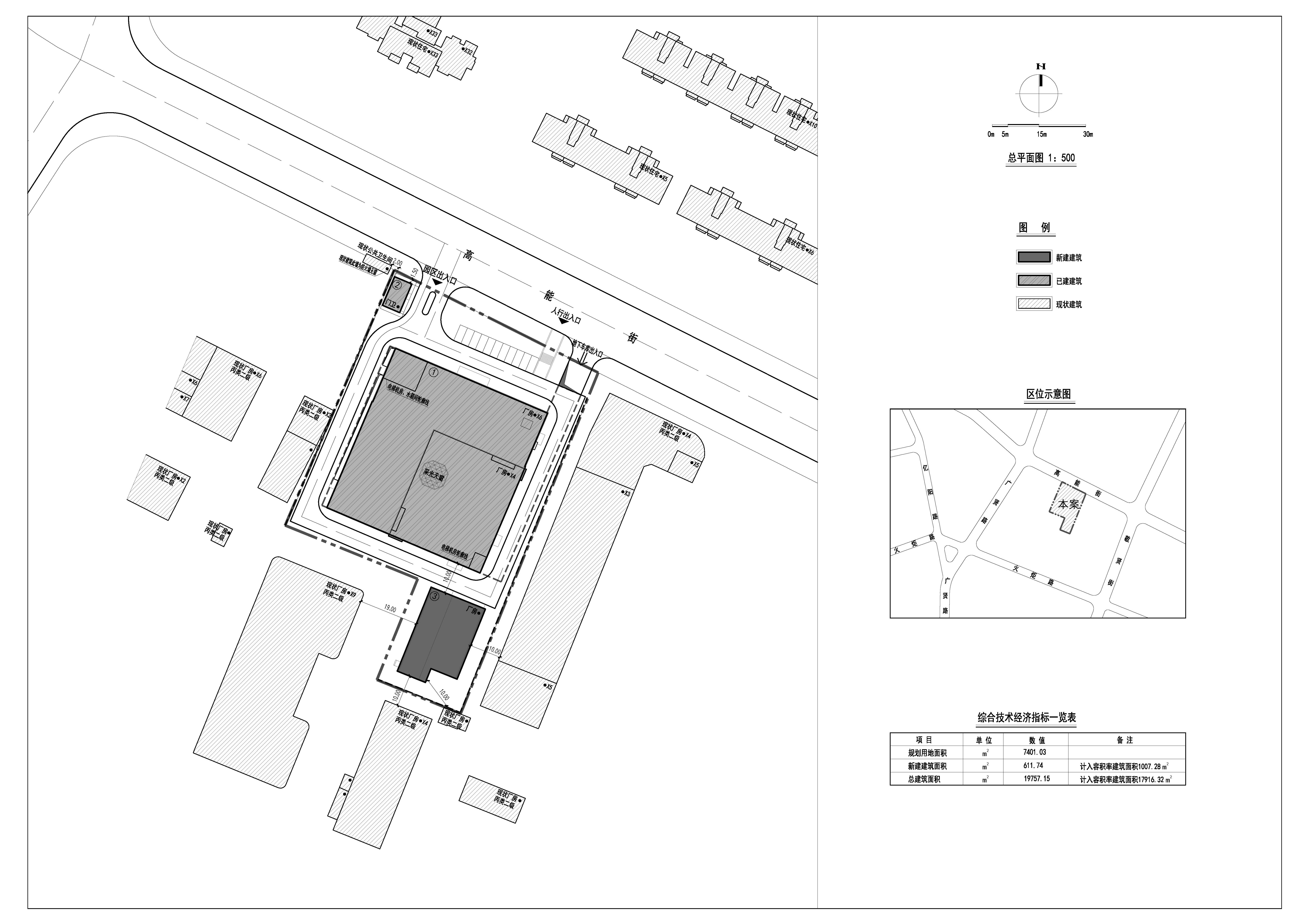
项目名称:美恒科技总部与工业互联网产业基地3号厂房
项目位置:高新区七贤岭街道高能街南侧
用地性质:工业用地
规划指标:详见公布图
公布事项:建设工程规划许可
批复文号:建字第2102112025GG0008587号
批复时间:2025年4月14日
公布形式:大连高新技术产业园区政府网站
联系电话:84796785
大连高新技术产业园区自然资源局
2025年10月27日

建设单位:大连峻润科技有限责任公司
设计单位:大连城建设计研究院集团有限公司
项目名称:美恒科技总部与工业互联网产业基地3号厂房
项目位置:高新区七贤岭街道高能街南侧
用地性质:工业用地
规划指标:详见公布图
公布事项:建设工程规划许可
批复文号:建字第2102112025GG0008587号
批复时间:2025年4月14日
公布形式:大连高新技术产业园区政府网站
联系电话:84796785
大连高新技术产业园区自然资源局
2025年10月27日
